Moradia Contemporânea T3+1 em São Martinho

Moradia 2 pisos com piscina

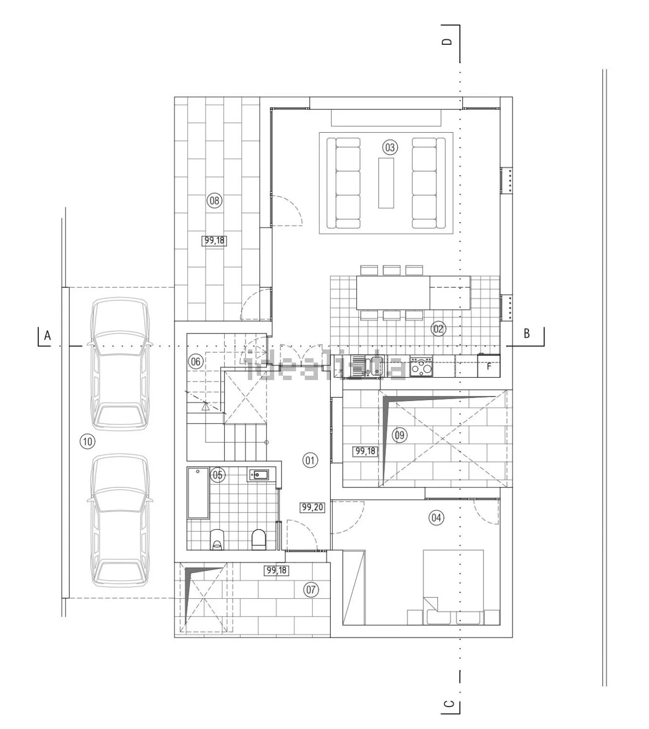
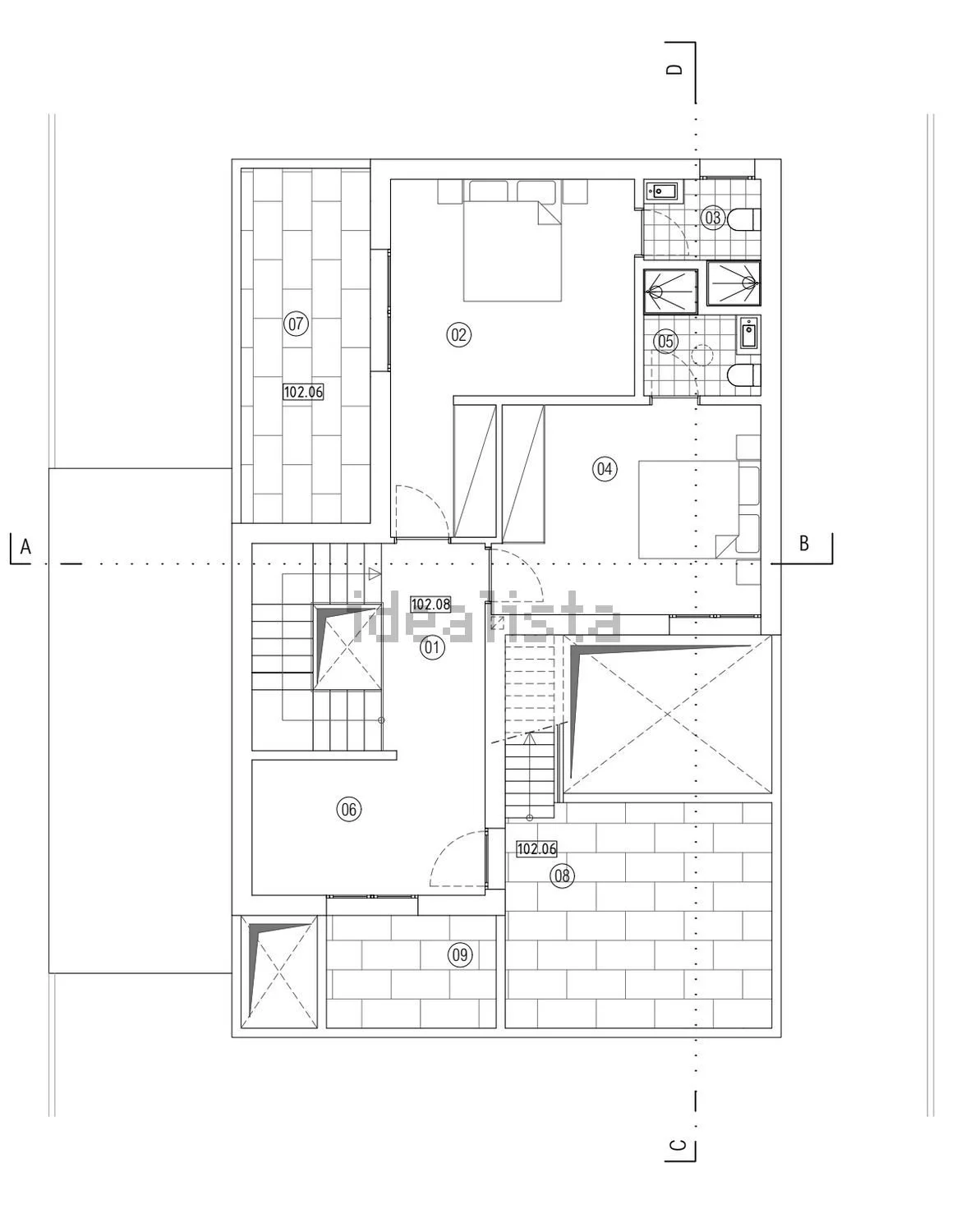
1 Quarto + 2 Suites, 3 Casas de Banho

Área útil total: 170m2

Preço: 575.000€

Características

Moradia distribuída por 2 pisos com rés do chão com cozinha equipada e sala open space, casa de banho, quarto. Primeiro andar com 2 suites, escritório, terraço e varanda. Ultimo piso com terraço panorâmico. Exterior com piscina, zona relvada e telheiro.

Com terreno de cerca de 400m2 todo murado, possui excelente localização a cerca de 500metros da praia. Quartos com roupeiros, estores elétricos, cozinha equipada, ar condicionado, portão elétrico, vídeo porteiro, tetos falsos com leds, painéis solares. Classe energética A.

Mais sobre o Imóvel

Venha visitar

Salir do Porto

Horário
de segunda a sexta-feira, das
10h às 18h

Telefone
Fernando Clérigo: +351 914197272

 
Anterior
Anterior

Moradia T5 Caldas da Rainha - 699,000€

Próximo
Próximo

Terreno construção Riomaior - 285.000€